Notice
Recent Posts
Recent Comments
Link
| 일 | 월 | 화 | 수 | 목 | 금 | 토 |
|---|---|---|---|---|---|---|
| 1 | ||||||
| 2 | 3 | 4 | 5 | 6 | 7 | 8 |
| 9 | 10 | 11 | 12 | 13 | 14 | 15 |
| 16 | 17 | 18 | 19 | 20 | 21 | 22 |
| 23 | 24 | 25 | 26 | 27 | 28 | 29 |
| 30 |
Tags
- 투바이
- 중고가설방음벽
- 중고유공발판
- 중고써포트
- 중고유로폼
- 중고아웃코너앵글
- 중고강관파이프
- 작업발판
- 내수합판
- 통로용발판
- 안고리안전발판
- 중고아시바파이프6m가격
- 산승각
- 유로폼난간대
- 중고비계파이프
- 유로폼크로스바
- 유로폼까치발
- 오비끼
- 중고작업발판
- 족장발판
- 중고안전발판
- 중고거푸집
- 다루끼
- 중고단관파이프
- 방수합판
- 유로폼십자조인트바
- EGI강판
- 태고합판
- 중고EGI휀스
- 중고안전발판가격
Archives
- Today
- Total
디케이산업
가설방음벽, RPP(알피피) 방음판, 차음판, EGI휀스 가격, 이지아이펜스 매매, EGI강판, 비산먼지, 공사현장 가림막 신재 판매합니다. 본문
가설방음벽(RPP, EGI휀스, 스틸방음판등)
가설방음벽, RPP(알피피) 방음판, 차음판, EGI휀스 가격, 이지아이펜스 매매, EGI강판, 비산먼지, 공사현장 가림막 신재 판매합니다.
건설가설자재판매 2023. 3. 30. 07:00가설방음벽, RPP(알피피) 방음판, 차음판, EGI휀스 가격, 이지아이펜스 매매, EGI강판, 비산먼지, 공사현장 가림막 신재 판매합니다.

공사 현장등과 같이 소음이나 날림먼지가 많이 발생하는 곳에 일시적으로 설치하는 PVC 재질의 가설 판넬입니다.
가설방음벽, RPP(알피피) 방음판, 차음판, EGI휀스 가격, 이지아이펜스 매매, EGI강판, 비산먼지, 공사현장 가림막 신재 판매합니다.

RPP(Recycling Plastic Panel)
방음벽 (흡음형/차음형) 주문 제작 및 판매합니다.
RPP는 두가지 종류가 있으며, 소음의 흡음을 목적으로 설치하는 흡음형와
차단을 목적으로 설치하는 차음형(흡음재 없음)으로 구분합니다.
주문 제작시 수량에 따라 3~7일의 제작 기간이 소요됩니다.



제품은 판넬, 양개 조이너로 구성되어 있으며, 설치 길이 및 높이로 M2당 단가 안내드립니다.

위 사진과 같이 4M 이상으로 RPP 설치시 주주로 빔을 사용하여야 합니다.
상담시 자세히 안내 드리겠습니다.
가설방음벽, RPP(알피피) 방음판, 차음판, EGI휀스 가격, 이지아이펜스 매매, EGI강판, 비산먼지, 공사현장 가림막 신재 판매합니다.
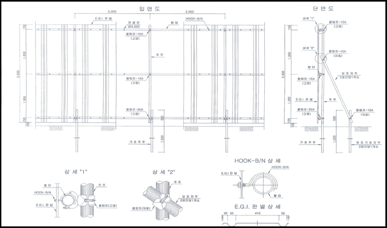
EGI 휀스, 이지아이휀스
(전기아연도금강판 (EGI = Electro Galvanized Iron))
EGI휀스는 냉연강판를 전기작용에 의하여 아연도금한 강판으로 EGI 전기아연도금 강판이라고 합니다.
두께는 0.45t ~ 1.0t로 길이 1.8m, 2.0m, 2.4m, 3.0m, 4.0m로 제작 가능합니다.
폭은 530mm로 100m 설치시 대략 200장이 소요됩니다.
제품특징
공사현장의 출입통제, 비산먼지 차단, 보행자 통행확보 및 사고 방지, 저렴한 비용 및 간단한 시공 가능, 안전한 작업, 높은 내구성과 안정성, 다양한 활용 가능합니다.
EGI 휀스, 이지아이휀스 규격
530mm * 0.5T ~ 1.0T



각 파이프는 단면이 단관 비계 파이프와 달리 원형이 아닌 사각형 형태의 파이프를 말합니다. 단관 비계 파이프와 같이 내구성이 강하여 건축용으로 현장에서 사용되며, 주로 유로폼 보강대로 많이 사용되며, 천장 공사나 슬라브 공사에 사용되는 자재입니다.
※ 운임비는 착불이며, 구매하신 수량과 지역에 따라 가격이 상이합니다.



|
![]()
|
견적문의
SG시스템
Office. 070-7886-7778
Mobile. 010-5300-9609
Fax. 070-7610-2336
E-mail. sgro88@naver.com
입출고 시간
(공휴일 및 일요일 휴무)
평 일 AM 08:30 ~ PM 17:30
토요일 AM 09:00 ~ PM 11:30
|
|
