일 | 월 | 화 | 수 | 목 | 금 | 토 |
---|---|---|---|---|---|---|
1 | 2 | 3 | 4 | |||
5 | 6 | 7 | 8 | 9 | 10 | 11 |
12 | 13 | 14 | 15 | 16 | 17 | 18 |
19 | 20 | 21 | 22 | 23 | 24 | 25 |
26 | 27 | 28 | 29 | 30 | 31 |
- 방수합판
- 안고리안전발판
- 중고비계파이프
- 중고EGI휀스
- 중고유로폼
- 내수합판
- 유로폼난간대
- 중고작업발판
- 중고써포트
- 중고가설방음벽
- 유로폼까치발
- 중고강관파이프
- EGI강판
- 족장발판
- 투바이
- 산승각
- 중고유공발판
- 중고거푸집
- 작업발판
- 중고단관파이프
- 중고안전발판
- 유로폼크로스바
- 오비끼
- 중고아웃코너앵글
- 태고합판
- 중고아시바파이프6m가격
- 통로용발판
- 다루끼
- 유로폼십자조인트바
- 중고안전발판가격
- Today
- Total
디케이산업
중고 RPP방음판, 아파트 건설현장 가설방음벽 가격, RPP흡음형, RPP차음형, RPP타공방음판, RPP규격, 설치구조검토, RPP 신재 판매 본문
중고 RPP방음판, 아파트 건설현장 가설방음벽 가격, RPP흡음형, RPP차음형, RPP타공방음판, RPP규격, 설치구조검토, RPP 신재 판매
건설가설자재판매 2024. 3. 14. 06:00중고 RPP방음판, 아파트 건설현장 가설방음벽 가격, RPP흡음형, RPP차음형, RPP타공방음판, RPP규격, 설치구조검토, RPP 신재 판매합니다.

안녕하세요~
가설방음벽 RPP (재생플라스틱판넬)에 대해서 올려보겠습니다.
아래 내용 참조하시고, 중고 및 신재 RPP를 판매 하고 있습니다.
설치는 하지 않고 판매만 하고 있으나,
설치에 조금이나마 도움이 되시길 바라는 마음에 올려봅니다.
RPP방음판 뿐만 아니라,
EGI휀스, EGI강판, 스틸방음판, 홀딩도어등을
함께 판매 하고 있습니다.
판매 및 설치에 관련하여 궁금하신 점 있으시면 전화 상담 부탁드립니다.

공사 현장등과 같이 소음이나 날림먼지가 많이 발생하는 곳에 일시적으로 설치하는 PVC 재질의 가설 판넬입니다.
중고 RPP방음판, 아파트 건설현장 가설방음벽 가격, RPP흡음형, RPP차음형, RPP타공방음판, RPP규격, 설치구조검토, RPP 신재 판매합니다.
신재 500mm, 670mm 폭과 중고 500~670mm 으로 되어 있습니다.
중고 및 신재 원하시는 사이즈 최대 10m 까지 제작 및 재단 가능합니다.
RPP는 m2 당으로 견적이 됩니다.
RPP타공방음판, RPP방음판 각각 차음형, 흡음형등이 있으며,
종류별로 단가 차이가 있으며,
계산 방법은
높이 (m) * 총 설치 거리 (m) * m2 당 단가 = RPP 구매 단가 (공급가액)
입니다.

RPP(재생플라스틱판넬)
Recycling Plastic Panel
공사 현장등과 같이 소음이나 날림먼지가 많이 발생하는 곳에 일시적으로 설치하는
PVC 재질의 가설 판넬입니다.
RPP는 두가지 종류가 있으며, 소음의 흡음을 목적으로 설치하는 흡음형와 차단을 목적으로
설치하는 차음형(흡음재 없음)으로 구분합니다.




제품은 판넬, 양개 조이너로 구성되어 있으며, 설치 길이 및 높이로 M2당 단가 안내드립니다.

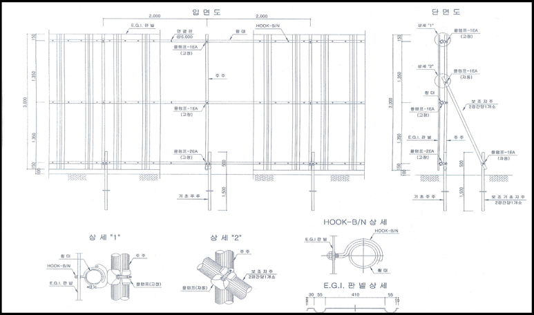
위 사진과 같이 4M 이상으로 RPP 설치시 주주로 빔을 사용하여야 합니다.
상담시 자세히 안내 드리겠습니다.


중고 RPP방음판, 아파트 건설현장 가설방음벽 가격, RPP흡음형, RPP차음형, RPP타공방음판, RPP규격, 설치구조검토, RPP 신재 판매합니다.
EGI휀스, 이지아이휀스
(전기아연도금강판 (EGI = Electro Galvanized Iron))
EGI휀스는 냉연강판를 전기작용에 의하여 아연도금한 강판으로 EGI 전기아연도금 강판이라고 합니다.
두께는 0.45t ~ 1.0t로 길이 1.8m, 2.0m, 2.4m, 3.0m, 4.0m로 제작 가능합니다.
폭은 530mm로 100m 설치시 대략 200장이 소요됩니다.
제품특징
공사현장의 출입통제, 비산먼지 차단, 보행자 통행확보 및 사고 방지, 저렴한 비용 및 간단한 시공 가능, 안전한 작업, 높은 내구성과 안정성, 다양한 활용 가능합니다.
EGI 휀스, 이지아이휀스 규격
530mm * 0.5T ~ 1.0T




중고 RPP방음판, 아파트 건설현장 가설방음벽 가격, RPP흡음형, RPP차음형, RPP타공방음판, RPP규격, 설치구조검토, RPP 신재 판매합니다.






![]()
|
견적문의
Mobile. 010-5300-9609 Office. 070-7886-7778 Fax. 070-7610-2336
E-mail. sgro88@naver.com
입출고 시간
(공휴일 및 일요일 휴무)
평 일 AM 08:30 ~ PM 17:30
토요일 AM 09:00 ~ PM 11:30
|